Opis
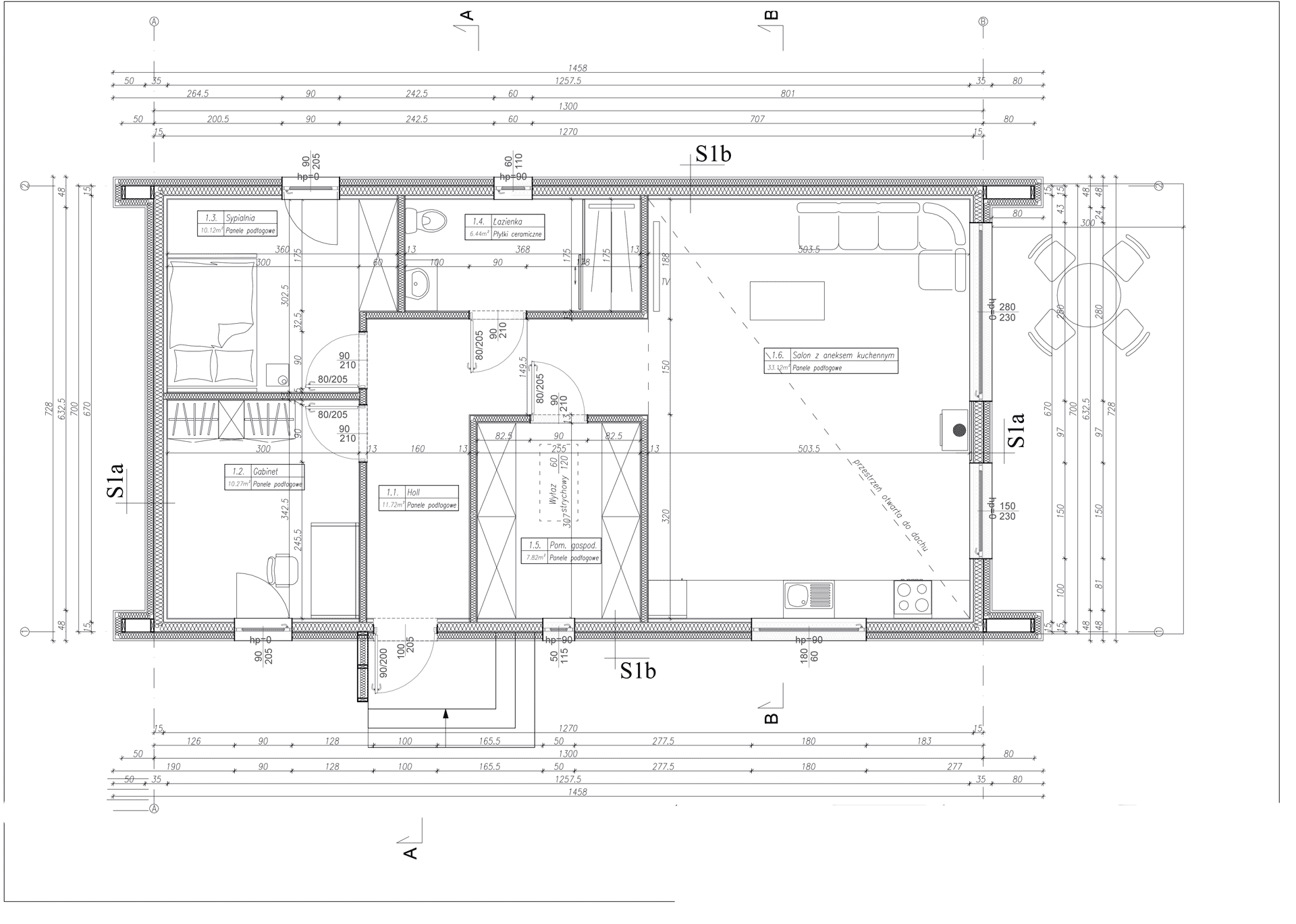
Budynek parterowy całoroczny Bergamo, idealny dla 2-3 osobowej rodziny. Przestronny salon z kuchnią z otwarty pod dach, dwie sypialnie, pom. gospodarcze oraz łazienka.
Koszt wykonania stanu surowego zamkniętego wynosi
237 000 zł brutto
Stan surowy zamknięty:
Opis budynku:
- Budynek parterowy całoroczny o wymiarach zewnętrznych 7m x 12m
- Wysokość 5,95 m
- Powierzchnia użytkowa 73,23 m²
Kontrukcja:
- Konstrukcja ścian 145 mm x 45 mm
- Konstrukcja dachu 195 mm x 45 mm
- Strop budynku 195 mm x 45 mm zakończony płytą OSB o grubości 22 mm
- Wiatroizolacja
Wygląd zewnętrzny:
- Dach pokryty blachą na rąbek firmy blachdom plus
- Elewacja wykonana z płyty steico o grubości 10 cm wraz z jasnym tynkiem.
- Istnieje możliwość zmiany elewacji na inny materiał jak np. blacha na rąbek lub deska elewacyjna. Zmiana elewacji podlega odrębnej wycenie
- Zadaszenia drzwi wejściowych
- Rynny PCV w dowolnym kolorze
- Parapety stalowe
Stolarka okienna oraz drzwi:
- Okna 3 szybowe w dowolnym kolorze firmy Drutex lub Aluplast
- Drzwi wejściowe stalowe ocieplone firmy KMT
Projekt techniczny budynku w trzech egzemplarzach
Stan deweloperski zawiera prace wyżej wymienione plus:
Koszt wykonania stanu deweloperskiego wynosi
390 000 zł brutto
Kontrukcja:
- Konstrukcja ścian działowych 100 mm x 45 mm
Ocieplenie dodatkowe w stanie deweloperskim
- Ściany wewnątrz budynku między konstrukcją ocieplone wełną mineralną Isover super mata Lambda 0,032 W/mK o grubości 15 cm.
- Ocieplenie dachu wełną Isover o grubości 20 cm Lambda 0,032W/mK
- Izolacja akustyczna ścian działowych 10 cm wełny mineralnej
- Izolacja akustyczna stropu o grubości 20cm wełny mineralnej
- Izolacja podłogi parteru 15cm styropianu + wylewka cementowa lub 20 cm wełny mineralnej między konstrukcją drewnianą 200 mm x 45 mm zakończona płytą OSB grubości 22 mm
Instalacje wewnątrz budynku:
- Instalacja elektryczna wewnątrz budynku zakończona puszkami oraz rozdzielnią elektryczną wraz z bezpiecznikami (90 punktów). Prace wykonywane przez elektryka posiadającego aktualne świadectwo kwalifikacyjne SEP
- Instalacja wodno-sanitarna wewnątrz budynku
Wykończenie wnętrza:
- Ściany wykonane z płyt kartonowo gipsowych, pod którymi przykręcamy płyty osb o grubości 15 mm. Taka konstrukcja ścian powoduje zminimalizowanie pęknięć i wzmacnia konstrukcję budynku
- Strop oraz oraz dach nad salonem oraz kuchnią wykonany z płyt gipsowych na konstrukcji stalowej
Ogrzewanie budynku:
- Jest wiele możliwości ogrzewania budynku jak:
- maty na podczerwień
- kable grzewcze elektryczne
- pompa ciepła
- ogrzewanie gazowe
- i wiele innych.
Źródło ciepła wyceniamy indywidualnie po rozmowach z inwestorem i ustaleniem rodzaju ogrzewania.
Dodatkowe prace możliwe do wykonania przez naszą firmę:
- Sprawy formalne jak uzyskanie pozwolenia na budowę lub zgłoszenie budynku. Koszt między 12 000 zł – 19 000 zł
- Wykonanie płyty fundamentowej lub fundamentów wyceniamy indywidualnie
- Komin dymny firmy Schiedel lub stalowy
- Zwiększenie lub zmniejszenie domu do potrzeb klienta
Szybki kontakt
Zadzwoń teraz
Adres firmowy
Domy Juhas
ul. Żywiecka,
49-879 Rybarzowice
Formularz kontaktowy
Projekty
- Domy mieszkalne całoroczne
- Domy letniskowe
- Domy mobilne
Cennik
- Domy mieszkalne całoroczne
- Domy letniskowe
- Domy mobilne
Szybki kontakt
- e-mail: info@domyjuhas.pl
- tel: +48 514 121 481
Prywatność





